Изменение санузлов
«Мокрые места» в квартире требуют тщательной планировки при ремонте. Даже перенос ванной и туалета в рамках одного помещения обязательно подлежит согласованию. Не получится разместить санузел над жилыми комнатами. Исключение составляют первые этажи. У владельцев квартир без соседей снизу есть шанс получить разрешение на перенос туалетной или ванной комнаты.
Увеличить ванную можно за счет:
Требования к санитарной комнате:
- Дверь должна распахиваться наружу;
- Дверной проем выходит в коридор;
- Проход вдоль ванны не меньше 60 сантиметров;
- Перед умывальником и туалетом должно быть не менее 70 сантиметров.
Убрать балконную дверь и окно это перепланировка
» Содержание Балкон всегда воспринимался жильцами как дополнительное место не только для сушки белья, складирования ненужных вещей, но и дополнительное место отдыха. Все указанные функции легко осуществимы летом, но что делать зимой, если лоджия не остеклена?
Желание улучшить внешний вид квартиры и увеличить его функциональность толкает владельцев квартир на остекление, утепление и перепланировку балкона. При этом, у многих возникают вопросы, нужно ли обращаться в исполнительные органы за разрешением или можно произвести остекление без предварительного согласования. Для начала разберемся, что считается перепланировкой, а какие работы к данному термину не относятся.
В соответствии со статьями 25 и 26 ЖК РФ перепланировкой являются любые работы, в результате которых меняется визуальное восприятие помещения.
Для более точного определения можно сказать, что переустройством являются любые изменения требующие внесения в план БТИ. Перечень работ нуждающихся в согласовании:
- Изменение конфигурации проемов дверей, окон;
- Изменение толщины стен;
- Демонтаж встроенных шкафов и антресолей;
- Частичная или полная переделка инженерных коммуникаций;
- Остекление, если оно не было предусмотрено проектом.
- Снос или перенос стен;
Не требуют согласования:
- Передвижение газовой плиты, кухонной раковины в пределах кухни;
- Изменение места нахождения электророзеток.
- Смена напольных покрытий, если речь не идет о залитии цементной стяжки;
Варианты совмещения
Наиболее распространенные варианты совмещения:
- гостиная с лоджией;
- кухня с лоджией;
- спальня с лоджией.
Кухня, объединенная с балконным помещением
Присоединение лоджии к кухне кажется самым оптимальным вариантом, поскольку даже на маленькой конструкции с эркером можно оборудовать уютный обеденный уголок.
Эркерная лоджия, совмещенная с кухней, фото
Присоединив кухню к лоджии, небольшие нестыковки можно с пользой обыграть, организовав на дополнительной площади семейный обеденный стол, или зону отдыха.
Присоединенная лоджия нестандартной формы может стать «изюминкой помещения»
Также на балконном помещении можно поместить холодильник, если для него не хватало места на кухне.
Объединение кухни с лоджией, фото
Совмещение лоджии с кухней допускает сохранение подоконной стены, ее можно превратить в красивую барную стойку.
Кухня, объединенная с лоджией, фото
Если при совмещении планируется перенос раковины на балконное помещение. или плиты, это уже требует разрешения и согласования с соответствующими инстанциями. Данный вариант перепланировки (присоединения) делать не рекомендуется, поскольку это является небезопасным для квартиры и целого дома.
Неудачный пример использования объединенного помещения лоджии с кухней
Соединение лоджии с основной комнатой
Особенно важно увеличение комнаты за счет лоджии для жителей малогабаритной квартиры. При объединении конструкций дополнительные квадратные метры можно использовать для обустройства спального места
Там поместится небольшая кровать, или диван-трансформер.
Лоджия, присоединенная к комнате, фото
Если присоединить лоджию к основной комнате, то на этом пространстве можно оборудовать личный кабинет. Его можно омеблировать компьютерным столом, стулом и парой ящиков или полок.
Мини-кабинет, обустроенный на балконной площади, вполне заменит отдельную комнату
Присоединив лоджию к гостиной, можно получить большое пространство и разбить его на несколько функциональных зон.
Гостиная станет уютнее и просторнее, если соединить ее с лоджией
В многокомнатной квартире вариантов использования лоджии больше. В основном данная конструкция присоединяется для увеличения одного из небольших помещений. Это может быть спальня, детская комната.
Детская — вариант того, как можно соединить лоджию с комнатой, фото
Совет: При обустройстве совмещенной лоджии не рекомендуется утяжелять присоединенное пространство большой и громоздкой мебелью.
Объединение конструкции со спальней
Если лоджию присоединить к небольшой спальне — это расширит помещение. Сделать это намного проще, чем объединять между собой другие помещения.Спальную зону при необходимости можно изолировать шторой, или перегородкой, легким декоративным панно .
Чтоб было комфортно, на присоединенной лоджии можно проложить теплый пол, а остальную площадь омеблировать нишами и шкафчиками для хранения вещей.
Зонированная лоджия, объединенная с комнатой (фото)
Все этапы работ, выполняемых при совмещении (объединении) балконного пространства с комнатой, смотрите на видео:
Объединение/совмещение лоджии и комнаты — дело, требующее времени, терпения и материальных затрат. Но польза от такого присоединения неоспоримо больше. Это прекрасный способ расширения жилой площади, придания жилью большего комфорта и удобства.
Детская-балкон
Использование зонирования позволяет создавать дополнительный уютный уголок для ребенка.
Это может быть:
- игровая комната, заполненная игрушками;
- рабочий кабинет с книжными полками, столом, доской с мелками или маркерами;
- спортивным уголком с веревочными лестницами, кольцами, шведской стенкой.
Детская требует нескольких источников света, хорошего утепления.
Детская с балконом для мальчика
Кухня-балкон
Популярно использование подоконной зоны в качестве барной стойки или обеденного стола.
Совмещение кухни и лоджии
Балкон не стоит перегружать бытовой техникой, холодильником.
Лучше использовать пространство для хранения заготовок, пустых банок
Обилие текстиля в оформлении не приветствуется, он впитывает запахи пищи. Будет уместен небольшой огородик – ящики со свежей зеленью или цветы.
Что важно знать, принимая решение расширить за счёт лоджии помещение
Планируя расширение жилплощади за счёт лоджии или балкона, важно учитывать некоторые нюансы. Не во всех регионах одинаково законодательство разрешает реконструкции бетонных блоков построек, поэтому в каждом индивидуальном случае прежде, чем приступать к реконструкции, следует узнать о разрешительных документах на демонтаж
Но практически повсеместно:
- Нельзя трогать несущие стены, все инстанции запрещают демонтаж несущих единогласно.
- Нельзя выносить за пределы комнаты отопительные батареи (радиаторы) во избежание общего переохлаждения дома и превышения энерго- и теплозатрат на дом.
- Нельзя подвергать демонтажу или закрытию глухой простенок в каждой квартире (требования пожарной безопасности).
- Нельзя использовать в перепланировке строительные материалы тяжелых типов (металл, крупные бетонные конструкции на небольшом участке помещения) во избежание перекоса здания.
Перепланировка жилых комнат
Создавая новые помещения, необходимо следовать следующим требованиям:
- Все комнаты (спальня, зал и кухня) должны иметь доступ к естественному освещению, к окнам (исключение составляют прихожая, коридор, кладовая и санузел);
- Спальня не должна быть проходной;
- Однокомнатная квартира должна быть не менее 28 квадратных метров;
- Две комнаты можно сделать только в помещении площадью не меньше 44 квадратных метров.
Создание новых стен и перегородок является перепланировкой только в том случае, если создается новое помещение. Разграничение пространства с помощью гипсокартона, стеклянных, пластиковых, деревянных блоков перепланировкой считаться не будет. Увеличение коридоров за счет жилых комнат не предусмотрено.
Нормы площади жилых комнат и кухонь
В однокомнатной квартире:
- Кухня-ниша — от 5 квадратных метров;
- Обычная кухня — от 6 квадратных метров;
- Жилая комната — от 14 квадратных метров.
В двухкомнатных квартирах:
- Одна из комнат — от 16 квадратных метров;
- Спальня — от 8 квадратных метров (если прописано 2 человека, то не менее 10).
Можно ли поменять балконную дверь без окна?
» Содержание Балкон всегда воспринимался жильцами как дополнительное место не только для сушки белья, складирования ненужных вещей, но и дополнительное место отдыха.
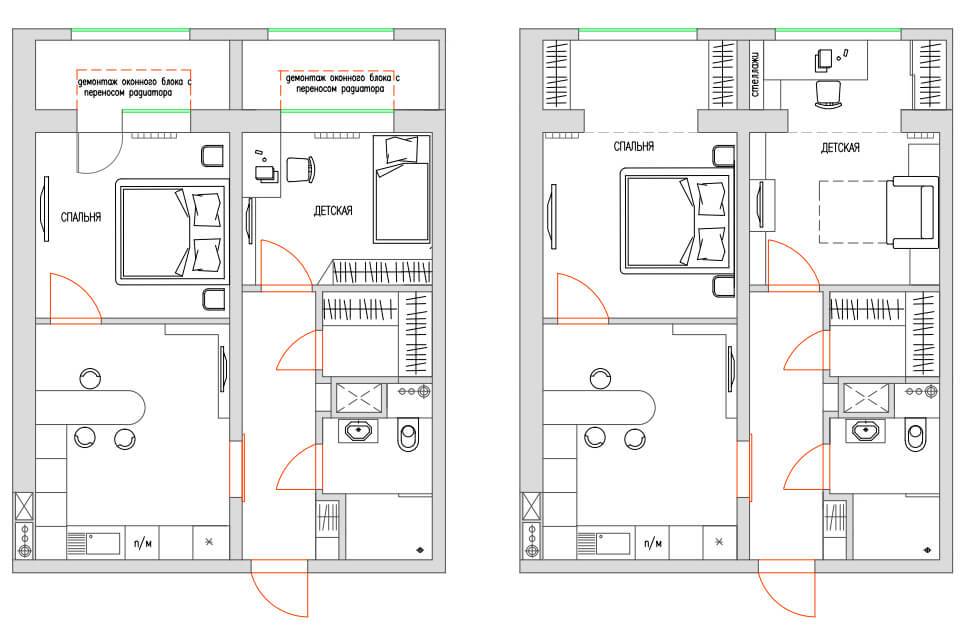
Планирую убрать балконный блок между комнатой и лоджией, с сохранением самой стены-требуется ли на это согласование? 16 июня 2021, Наталья Павел, добрый вечер! В продолжения нашего разговора направляю Вам фрагмент плана Квартиры с лоджией и кухней. В настоящее время мы готовим дизайн.
Все указанные функции легко осуществимы летом, но что делать зимой, если лоджия не остеклена? Желание улучшить внешний вид квартиры и увеличить его функциональность толкает владельцев квартир на остекление, утепление и перепланировку балкона.
При этом, у многих возникают вопросы, нужно ли обращаться в исполнительные органы за разрешением или можно произвести остекление без предварительного согласования. Для начала разберемся, что считается перепланировкой, а какие работы к данному термину не относятся.
В соответствии со статьями 25 и 26 ЖК РФ перепланировкой являются любые работы, в результате которых меняется визуальное восприятие помещения. Для более точного определения можно сказать, что переустройством являются любые изменения требующие внесения в план БТИ.
Перечень работ нуждающихся в согласовании:
- Остекление, если оно не было предусмотрено проектом.
- Снос или перенос стен;
- Частичная или полная переделка инженерных коммуникаций;
- Демонтаж встроенных шкафов и антресолей;
- Изменение конфигурации проемов дверей, окон;
- Изменение толщины стен;
Не требуют согласования:
- Смена напольных покрытий, если речь не идет о залитии цементной стяжки;
- Изменение места нахождения электророзеток.
- Передвижение газовой плиты, кухонной раковины в пределах кухни;
Будет ли являться снятие деревянных окна и двери на лоджию перепланировкой?
Дом сдан в эксплуатацию в 1982 года в комнате выходящей на лоджию и оконная рама и балконная дверь были сделаны из не качественных деревянных изделий прогнили .
1 Нужно ли согласование на то что бы их снять при ремонте комнаты.
2. Будет ли это являться перепланировкой . если этот проем (без окна и без двери) останется в дальнейшем открытым.
29 Марта 2021, 20:41, вопрос №1950788 НИКОЛАЙ, г. Сочи Свернуть Консультация юриста онлайн Ответ на сайте в течение 15 минут Ответы юристов (3) 128 ответов 12 отзывов Общаться в чате Бесплатная оценка вашей ситуации Елагин Юрий Адвокат, г.
Рекомендуем прочесть: Пдд 2021 категории в
Москва Бесплатная оценка вашей ситуации
- 128ответов
- 12отзывов
Нарушением является самовольное перепланирование квартиры без разрешения, то есть проведенное с нарушением требований, установленных в: ч.
6 ст. 26 Закона; п. 3 ч. 2 ст.
26 Закона. Ч. 6 ст. 26 Закона указывает, что без документа, который является основанием для осуществления процедуры, перепланировка будет признана незаконной. представлена в Постановлении № 266.Также самовольной будет признана перепланировка в случае, если заявителем не будет подготовлен и оформлен проект перепланирования (п.
3 ч. 2 ст. 26 Закона).Если нужна подробная консультация, пишите мне на почту: 29 Марта 2021, 20:51 1 0 16 ответов 4 отзыва Общаться в чате Бесплатная оценка вашей ситуации Юрист, г. Сочи Бесплатная оценка вашей ситуации Согласно ч.
Можно ли поменять балконную дверь без окна
Содержание Говорить о том, возможна ли замена балконной двери без попутной замены окна возможно только после осмотра блока.
В зависимости от конструкции может быть произведена или наоборот, невозможна замена отдельных его элементов независимо друг от друга.
Цельная оконно-балконная рама исключает возможность замены двери без окна, тогда как отдельный дверной проем под балконную дверь такой вариант ремонта делает реальным
Для того, чтобы заменить балконную дверь без замены окна или с окном, не важно, понадобится снять вышедшую из строя или срока эксплуатации конструкцию
Для этого дверное полотно снимают с петель (если замена выполняется с заменой окна, то снимают также и оконные створки), после чего удаляют с откосов следы штукатурки.
Чтобы поверхность получилась чистой и ровной, можно использовать перфоратор.
Остатки монтажной пены, утеплителя и уплотнителя можно просто удалить специальной щеткой. Важный момент — демонтаж крепежных элементов, используемых для предыдущего блока выполняют после удаления внутренней части полотна.
Монтировать пластиковую дверь на балкон можно своими руками, если гарантийный срок обслуживания блока истек. В этом случае потребуется следующий набор инструментов:
- молоток;
- угольник;
- перфоратор;
- ножницы по металлу.
- рулетка;
- рулетка;
- электролобзик;
- болгарка;
- шуруповерт;
- дрель;
Стоит отметить, что заменить балконную дверь без замены окна получится в единичных случаях, при этом работы такого рода выполнить сможет профильный мастер.
Перепланировка с демонтажем остекления и двери на балкон
2 июля 2021, Анастасия Здравствуйте !
Хочу убрать окно на кухне и блок под окном и поставить стеклянную дверь для выхода на лоджию . Сейчас выхода на лоджию нет . В какую. 25 июня 2021, Наталья Добрый день!
Планирую убрать балконный блок между комнатой и лоджией, с сохранением самой стены-требуется ли на это согласование? 16 июня 2021, Наталья Павел, добрый вечер! В продолжения нашего разговора направляю Вам фрагмент плана Квартиры с лоджией и кухней.
В настоящее время мы готовим дизайн. 16 мая 2021, Ирина Нужно ли согласие остальных собственников жилья многоквартирного дома для сноса подоконного блока (30 см) т.к он (подоконный блок) является общей. 7 мая 2021, Татьяна Добрый день! Собираюсь присоединить балкон к кухне в панельном доме, убрав балконный блок, поставив теплое остекление, утеплив балкон (трубы.
14 марта 2021, Виктор Добрый день!
Меня зовут Дмитрий Я собственник трёх комнатной квартиры по ул.Кузьминская . В своё время убрал на балкон дверь окно и стенку и. 10 февраля 2021, Дмитрий Здравствуйте!
У меня похожая ситуация, можно ли узаконить такое расширение кухни, если например установить раздвижные окна-двери только на момент.
6 февраля 2021, Петр Добрый день. Год постройки дома: 1996, тип дома: Панельный, серия дома: П-55, проживаем на 3 этаже. Скажите, пожалуйста, есть ли возможность.
29 января 2021, Наталия
Способы присоединения
Существует несколько вариантов объединения комнаты с балконом или лоджией.
- Удаление только оконной конструкции. Стеновая перегородка остаётся на месте. При этом необходимо произвести остекление и утепление балкона.
- Полный демонтаж стены. Таким способом получают комнату с большей площадью. В этом случае требуется не только остекление и утепление, но и перенос отопительного радиатора.
Этот процесс довольно длительный, поэтому следует заранее побеспокоиться об этом. Даже если планируется просто перенести отопительный радиатор и стену не трогать, то документы необходимо утверждать.
Расчет утепления балкона при объединении
Конечно, повлиять на собственника, чтобы он оставил остекление после согласования перепланировки и получения нового техпаспорта мы не можем.
Но если вы все-таки приняли решение раздвижную перегородку временно убрать, то очень важно выполнить теплоизоляцию балкона с толщинами утеплителя, которые будут соответствовать нормативным сопротивлениям теплопередаче согласно ТКП 45-2.04-43-2006* табл.5.1. Для наружных стен 3,2 м²*°С/Вт;
Для наружных стен 3,2 м²*°С/Вт;
Для перекрытий 6,0 м²*°С/Вт;
Для остекления 1,0 м²*°С/Вт.
Наше проектное бюро обязательно поможет Вам рассчитать требуемые толщины теплоизоляции ограждающих конструкций на балконе или лоджии, для нормальной эксплуатации общего помещения.
Для понимания примерных толщин, приведем толщину минераловатной плиты марки
ПТМ СТБ 1995-2009-Т5-DS(TH)1-CS(10)50-TR15-WS1 в составе ограждающих конструкций:
Для стен
| Наименование материала | Толщина, мм | Коэффициент теплопроводности, Вт/(м °С) |
| Защитно-отделочный слой | 20 | 0,87 |
| Железобетон (ограждение) | 60 | 2,04 |
| Плиты минераловатные специальные фасадные повышенной жесткости γ=150кг/м³ ПТМ СТБ 1995-2009-Т5-DS(TH)1-CS(10)50-TR15-WS1 | 120 | 0,04 |
| Защитно-отделочный слой | 10 | 0,87 |
Для перекрытий (пол-потолок)
| Наименование материала | Толщина, мм | Коэффициент теплопроводности, Вт/(м °С) |
| Стяжка (пол соседей сверху) | 50 | 0,87 |
| Железобетон (перекрытие) | 160 | 2,04 |
| Плиты минераловатные специальные фасадные повышенной жесткости γ=150кг/м³ ПТМ СТБ 1995-2009-Т5-DS(TH)1-CS(10)50-TR15-WS1 | 240 | 0,04 |
| Защитно-отделочный слой | 10 | 0,87 |
Эти цифры приблизительные и рассчитываются исходя из конкретных условий.
Демонтаж окна на лоджию
После удаления рамы, в местах соприкосновения рамы со стеной останется утеплитель. Его надо полностью отчистить.
Чтобы добавить лишние квадраты к жилой площади, можно использовать лоджию. Придется полностью убрать внутреннее окно и балконную дверь, которые соединяют эти два пространства. Иногда вместе с демонтажем окон требуется полностью убрать и разделяющую стенку, перенести батареи отопления. Но перед тем как выполнить демонтаж и объединить лоджию и комнату, необходимо определить, какой именно объем работ требуется провести.
Первое, о чем придется позаботиться, это определить, несущая стена или нет разделяет жилую комнату и лоджию или балкон. В первом случае можно будет убирать только балконную дверь или окно, во втором — практически всю перегородку, оставив только привлекательный портал.
Если вы не хотите ломать всю стенку вместе с окном, то вполне можно установить на бывший подоконник в дальнейшем столешницу.
Начинать демонтаж соединяющего окна надо после того, как внутренняя отделка полностью убрана, желательно, чтобы была закончена работа по установке внешних окон на лоджию, которые выходят на улицу.
При выполнении работ надо учитывать, из какого материала сделаны перегородки, от этого будет зависеть применение определенного инструмента.
Чаще всего на лоджию ведут простые железобетонные панельные перегородки, но может применяться и обычный кирпич (красный или силикатный). Если кирпичное строение, то можно убирать всю часть под подоконником, заняться переносом отопительных батарей, то есть работы получатся затратными и длительными. Но прежде чем демонтировать такую перегородку на лоджию, необходимо проконсультироваться со специалистами, получить одобрение соответствующих органов на реконструкцию.
Для железобетонных перегородок работы требуют применения более мощного инструмента, в данном случае требуется создание усиленной конструкции для будущего проема в виде портала.
Из балконной тумбы можно сделать обеденный стол, подставку для цветочных горшков, полки для книг и безделушек.
Из балконной тумбы может получиться замечательная столешница, из которой можно сделать обеденный стол, подставку для цветочных горшков, полки для книг и безделушек.
Убрать окно довольно просто. При помощи ломика снимается рама, далее, применяя перфоратор, убирают остатки перегородки и тумбу. В последнем случае необходимо снять и перенести отопительную батарею. Работа это довольно сложная, если вы не уверены в своих силах, лучше всего к ней привлечь специалистов. Вместо переноса батареи на лоджию можно использовать и такой вариант, как устройство теплых полов.
В таком случае лучше всего применять специальные электрические системы, которые позволяют сделать балкон теплым и уютным, избежать потерь тепла.
Перепланировка балкона в кухню или комнату. Можно ли узаконить присоединение балкона?
Ещё недавно присоединение балкона к кухне или комнате и создание единого пространства формально было не запрещено и не разрешено нормативными документами. В 2012 году в Приложении 1 к Постановлению №508 Правительства Москвы был пункт 2.2.9, который говорил, что присоединение балконов осуществляется на основании проекта перепланировки. После выпуска в декабре 2012 года нового постановления №840, этот пункт убрали, что стало толчком для запрета таких присоединений. Данное указание было спущено «сверху», а потому на практике такая перепланировка балкона была несогласуема- чиновники выдавали отказ, относя её к реконструкции по пункту 14 ст.1 Градостроительного кодекса РФ (хотя опять же, явно там это было не прописано). Сейчас, после выхода Постановлений Правительства Москвы № 1104 от 29.12.2017 и №1572 от 17.12.2018 появился пункт 10.19 Приложения 1, который однозначно запрещает присоединение балкона к кухне или комнате в чистом виде.
Большинство институтов- авторов проектов домов также не дают своё положительное заключение на присоединение балкона к комнате или кухне, а оно необходимо в соответствии с пунктом 1.4.7 Приложения 3 к Постановлению Правительства Москвы №508. Проектировщики обосновывают это тем, что перепланировка балконов с их присоединением к внутренним помещениям увеличивает отапливаемую площадь (да ещё холодную), на которую изначально не была рассчитана система отопления всего дома. Если разрешить всем присоединять балконы, то система не справится с новой большой нагрузкой, и жилищные условия жителей станут неприемлимыми (внутри квартиры упадёт температура ниже минимально пригодной для проживания).
Аргументы, что выполняется не просто присоединение балкона, но и его утепление с возможностью предоставить инженерный расчет нагрузки на систему отопления, после чего сделать вывод о том, что система отопления справится с дополнительной нагрузкой – не принимаются со ссылкой на то, что это повлияет на расход тепла по всему дому, району и т.п.
Раздвижные светопрозрачные перегородки (французское окно)
Некоторые устанавливают даже автоматические раздвижные двери.
Раздвижная перегородка устанавливается либо на постоянной основе, либо на время прихода приемочной комиссии, если собственнику в будущем хочется обойтись все-таки без неё. В первом случае планы БТИ после согласования полностью соответствуют реализованной перепланировке. Во втором случае на планах БТИ штрихом все-таки будет указано наличие двери (примеры на рисунке), которой по факту нет.
Присоединение балкона к комнате. План квартиры до перепланировки.
Однако, при этом, во-первых, будет согласован демонтаж подоконного блока и на БТИ уже не будет присутствовать окно, во-вторых, наличие двери в дверном проеме отмечается лишь одним штрихом (пустой проем обозначается также, но без штриха), который заметен не сильно. В-третьих, если это будет очень важным при продаже квартиры раздвижную перегородку всегда можно поставить обратно. Поэтому, даже если Вы просто хотите убрать окно и дверь в оконно-дверном проёме при выходе на балкон, то сделать это лучше после завершения выполнения всего ремонта и ухода комиссии, а потом увезти их на дачу или убрать куда-нибудь до тех времён пока не понадобится полное соответствие планировки квартиры документам БТИ. Тогда их для такого соответствия всегда можно будет поставить на место.
В Подмосковье в некоторых городах удается осуществить согласование перепланировки балкона с присоединением к внутренним помещениям. Здесь всё зависит от позиции органов местного самоуправления, на которые возложены в соответствии с Жилищным кодексом РФ функции по согласованию перепланировки, а также от выпущенных ими законодательных актов.
Далее рассмотрим некоторые отличительные особенности данного вида перепланировки.
Изменился пункт: теперь присоединение балкона к комнате или кухне в чистом виде без установки французских окон запрещено согласно п. 10.19 Приложения 1 к Постановлению Правительства Москвы №508 (после выхода ППМ № 1104 от 29.12.2017 и ППМ №1572 от 17.12.2018).
Противопожарный простенок можно не оставлять, если квартира расположена на высоте не более 15 метров от земли (но взамен надо все равно ставить французское окно или сплошное остекление). Также вместо простенка можно установить огнеупорное стекло.
Демонтаж проема для присоединения балкона – что учесть
Для того, чтобы демонтировать всю стену, которая иногда выполняет важную функцию в конструкции, можно использовать некоторые приёмы, кроме арки. Демонтируя оконный проём, можно установить колонны, зрительно отгораживающие зону лоджии от основного пространства, или разграничить эти зоны при помощи металлических столбов. Визуально они не позволят утратить метраж освобождённой площади, а функционально выполнят значение стены.
Стоит продумать и такой момент, как остекление. Оставить стационарные оконные рамы, утеплив стены, можно, но можно заменить их на другие, более подходящие по дизайну в цвете или тонировать стёкла. Можно разнообразить и конструкцию, украсив проём фрамугой в форме полуокружности или других дизайнерских компонентах.
Демонтаж подоконного блока и порожка
В зависимости от типа и конструкции дома демонтаж подоконного блока могут согласовать или запретить. Например, в панельном доме – без шансов, а в монолитной новостройке наверняка не возникнет проблем
Важно не только является ли эта часть стены несущей, но и схема крепления балконной плиты
Совет: даже если снос подоконного блока согласовали, сносить порожек категорически запрещено. Такая перепланировка допустима только в монолитных новостройках с единой целостной плитой перекрытия и балкона. Чтобы скрыть порожек, можно поднять весь пол на лоджии, чтобы получился импровизированный подиум.

Можно ли убирать балконную дверь и окно без согласования
«Перекраивание» лоджии — один из самых частых вопросов при ремонте. Можно ли узаконить присоединение? Как и любую «переделку», затрагивающую конфигурацию жилья, ее нужно проводить с разрешения надзорных органов.
И лучше это сделать заранее, потому что далеко не всякие новшества соглашаются узаконить. Как узаконить присоединение лоджии к комнате? Дорогие читатели! Наши статьи рассказывают о типовых способах решения юридических вопросов, но каждый случай носит уникальный характер. Если вы хотите узнать, как решить именно Вашу проблему — обращайтесь в форму онлайн-консультанта справа или звоните по телефону +7 (499) 110-41-92 .
Это быстро и бесплатно ! Перепланировка квартиры: что можно и чего делать нельзя — узнайте об этом из нашей статьи.
Совмещение балкона и комнаты: идеи планировки
Балкон и спальня

Такой вид совмещения считается самым распространенным. И не имеет значения, демонтируете ли вы всю стену или оставляете ее кусок в качестве части интерьера, удаляя только дверь с окном – вариантом просто уйма! На лоджии можно оборудовать гардеробную или оранжерею, небольшую детскую или просто создать лаунж-зону.
Балкон и гостиная

Такой союз встречается реже, однако идей для обустройства такого ансамбля – тьма-тьмущая! На вновь полученных квадратных метрах можно создать рабочий кабинет или библиотеку (только если балкон был укреплен!), разбить зимний сад или же превратить лоджию в место для приема друзей с мини баром и стойкой.
Балкон и детская

Если в семье имеется несколько детей, то такой альянс позволяет получить дополнительное место для сна. Кроме того, там можно обустроить игровой уголок или зону школьника.
Балкон и кухня

Еще один весьма популярный вариант слияния двух помещений. На обретенных квадратных метрах вы можете расположить столовую, возможно, отнести туда пару шкафов. Кое-какие дома позволяют даже вывести на балкон трубы и установить там мойку.
Можно ли сносить балконную перегородку
Многие обладатели квартир в многоэтажных домах часто страдают от неудобства планировки.
Поэтому многие приветствуют идею объединения жилой комнаты с лоджией или балконом.
Такой вариант решения увеличения пространства позволяет создать уникальный дизайн в квартире.Но нельзя просто снести стену. Необходимо правильно, а главное законно проводить переделки. Так как основанием балкона является плита, защемлённая между перекрытиями, необходимо правильно распределить нагрузку мебели и других элементов.
Способы присоединенияСуществует несколько вариантов объединения комнаты с балконом или лоджией.
- Удаление только оконной конструкции. Стеновая перегородка остаётся на месте. При этом необходимо произвести остекление и утепление балкона.Полный демонтаж стены. Таким способом получают комнату с большей площадью. В этом случае требуется не только остекление и утепление, но и перенос отопительного радиатора.
В случае использования второго варианта необходимо согласовать план перепланировки в соответствующих службах.Этот процесс довольно длительный, поэтому следует заранее побеспокоиться об этом. Даже если планируется просто перенести отопительный радиатор и стену не трогать, то документы необходимо утверждать.Предварительные работыПрежде чем приступить к процессу соединения, необходимо продумать и проделать некоторые подготовительные работы:укрепление ограждения.
Специалисты советуют сварить из металлоконструкций надёжный каркас;выполнить наружную облицовку сайдингом.
Согласование присоединения балкона к квартире
Уже не один житель Санкт-Петербурга преобразил свою квартиру и увеличил жилую площадь с помощью присоединения к ней балкона. Наша компания предоставляет услуги по согласованию присоединения балкона к квартирам. Мы помогаем оформлять документы по перепланировке и переустройству жилья в Санкт-Петербурге.
Так как эта часть жилплощади выносная, она может повлиять на облик здания. Поэтому к согласованию предъявляются особые требования.

Процесс согласования
Процесс согласования присоединения балкона к квартире состоит из следующих этапов.
Этап 1. Подготовительный этап начинается со сбора необходимых документов.
Этап 2. Далее проводятся расчеты:
- Конструктивный расчет;
- Расчет для усиления проема;
- Расчеты по теплотехнике;
- Межэтажное перекрытие и расчет нагрузки.
Этап 3. На этом этапе нужно получить согласие по объединению в следующих инстанциях: Пожарный надзор, Межведомственная комиссия, КГА.
В некоторых случаях, чтобы узаконивание было полноценным, нужно также обращаться в КГИОП и БТИ.
Этап 4. Введение в эксплуатацию.

Особенности согласования присоединения балкона к квартире
Для узаконивания перепланировки, а также последующего ремонта, следует учитывать такие особенности:
- Тепловой контур должен быть неразрывным. Для этого при демонтажных работах оконного блока и стены делается утепление.
- Если при демонтаже необходимо убрать радиатор, то его нужно перенести в специально отведенное место. На балконе радиатор устанавливать категорически запрещено.
- Нужно соблюдать требования пожарной безопасности. При пожаре балкон должен служить укрытием.

Услуги по согласованию балкона в Санкт-Петербурге
Если вы решились присоединить балкон к квартире – обращайтесь за помощью согласования в нашу компанию.

Наши специалисты проведут консультацию и помогут собрать необходимые документы. Мы выполняем работу с соблюдением требований всех инстанций и законодательства Российской Федерации.
Хочу убрать оконный блок+балконную дверь
Всем доброго времени суток!Уверена.
что подобные темы тут всплывали не раз — прошу поделиться ссылочкой ну или обсудить заново такой вопрос!Предстоит глобальный ремонт на кухне (наконец-то!!!) Дабы расширить жилое пространство, хочу убрать оттуда оконный блок и балконную дверь. Понимаю, что отделка балкона будет стоить недешево — так вот хотелось бы узнать — а сколько оно, это недешево?
Что там нужно? Теплый пол, электробатарея.
остекление теплое? Нужно ли это как-то узаконивать?
(Мечта была вообще снести и подоконную стенку.
но т.к. стена несущая. а дом высокий — то думаю, что законно это сделать не получится. а незаконно — не хочется)И было бы совсем чудесно, если бы Вы фотографии показали таких переделок!
Стену трогать нельзя. Просто снести блок можно, согласований вроде не нужно. А вот утеплять придется по полной программе. Сильвер Вам в помощь. Сильвер это где?
Вы знаете многие так делают, стенку под подоконником сносят, батарею переносят, на балкное стявят теплые окна (пластик, алюминий по желанию), утепляют стены.
Не уверена, что морочатся с перепланировкой, но можно уточнить. Алюминий раздвижной тепло не держит!
Пластик ставят, да еще и пятикамерный.
Батарею переносить нельзя. Сильвер это здесь. Ауууу, Сильвер! Подоконную секцию обычно убирать можно, порог нет. А алюминий бывает и нераздвижной, а вполне себе теплый
Например Sсhuko или ТАТпроф.

























































