Особенности углового устройства
Варианты расположения створок и их допустимое количество нужно рассчитать.
Все профильные системы следует адаптировать к особенностям сооружения и точно к размеру остекления, как требует инструкция. Это гарантирует бесперебойную и безопасную работу нестандартного окна.
Схема перемычки металлопластиковой конструкции.
Важно произвести расчет балки и глубину опоры. Специалисты выработали удобные способы остекления оконного проема
Всегда в строящемся доме учитывается нагрузка на эту угловую конструкцию. Обязательно окна оснащаются железобетонным обрамлением — конструктивной частью здания
Специалисты выработали удобные способы остекления оконного проема. Всегда в строящемся доме учитывается нагрузка на эту угловую конструкцию. Обязательно окна оснащаются железобетонным обрамлением — конструктивной частью здания.
Чертеж двухстворчатого устройства.
Способы усиления энергетической эффективности
Современные энергосберегающие устройства предпочтительны при больших проемах.
У систем без импоста параметры теплоизоляции ниже, чем у оконных конструкций с импостом. Ведь в системах с угловым элементом структурно поддерживается теплоизоляция.
А при остеклении без импоста лишь уплотнители удерживают тепло. Кстати, в очень больших конструкциях с импостом для усиления энергосбережения в самих профилях системных разъемов есть термо вкладыши.
Угловые оконные конструкции с системными разъемами иногда устанавливают в теплоизоляционном слое стены. Данная технология монтажа повышает энергосберегающие свойства.
Наиболее высокие тепловые характеристики даст возведение мурованного углового элемента, его последующее утепление изолирующими материалами. Хотя окно приобретет визуальный эффект монументальности вместо легкости.
Если предпочитаете тепло и эстетику, то лучше выбрать глухое угловое устройство без импоста. Оно обеспечит самую эффективную стандартную теплоизоляцию — фиксированное остекление.
Системы солнцезащиты
При угловых окнах важно определить наилучший способ солнцезащиты
Оптимальный выбор солнцезащитной системы — наружные роллеты.
А вот видов внутренней солнцезащиты множество, и декоративные возможности здесь безграничны:
Всегда актуально сочетание на угловых окнах компактных жалюзи либо рулонных штор с текстильными занавесками. Такой композиционный декор красив и практичен: он стильно украшает и отлично затеняет проем.
Подойдут карнизы со стыковочным элементом или гибкие их модели.
Короткий ламбрекен удачно объединит угловые окна и впустит в комнату свет.
На фото – классика с ламбрекеном и шторкой в углу.
В гостиной и спальне легкий тюль сделает комнаты более воздушными.
Повесив римские или рулонные шторы, или горизонтальные жалюзи вы своими руками создадите изысканный уют.
Такие проемы и сами являются украшением, поэтому предпочтите минимум декора и лаконичность.
https://youtube.com/watch?v=y1YdFDf-Mk8
Принципы выбора угловых штор
Ситуация, когда вам нужно заказывать угловые гардины или портьеры, возникает в трёх случаях:
1) архитектор разместил оконный проём на стыке стен;
2) вашу комнату украшает эркер с углами;
3) два окна расположены на соседних стенах, причём близко друг к другу.
А вот решения задачи всего два:
1) декор угла с окном или эркером с помощью единой, цельной занавески;
2) использование двух полотен, объединённых в единую композицию с помощью единого карниза или общего ламбрекена.
Впрочем, скромный выбор конструктивных решений компенсируется богатством стилистических вариантов. Простор для фантазии у вас точно будет!





Виды штор
Для оформления оконных проемов, расположенных в углу комнаты, подходят практически все виды занавесов:
- классические многослойные портьеры и занавески на люверсах либо на петлях;
- модели с жестким и мягким ламбрекеном;
- пышные французские и стационарные итальянские фасоны;
- короткие австрийские и оригинальные легкие ассиметричные занавески;
- римские и рулонные шторы.
В последнее время стало модно сочетать на окнах компактные жалюзи и текстильные шторы либо тюли. Такие композиции очень функциональны и практичны, они помогают надежно защитить пространство от света и вместе с тем украшают проем и поддерживают стиль интерьера, делают его более уютным и комфортным.
Ассиметричные легкие занавески в купе с плотными жалюзи – эстетичное, функциональное и компактное решение, которое идеально подходит для декорации окон в небольших помещениях
Общие рекомендации
Шторы для окна углом должны деликатно подчеркивать необычность проемов и одновременно создавать эффект единства ансамбля. Для оформления проемов в гостиной лучше выбирать красивые, богатые ткани в сочетании с органзой либо тюлем. Если дизайн зала выполнен в современном либо минималистическом стиле, то в таких интерьерах на угловые окна будут уместны современные виды штор, например, японские экраны или рулонные модели в купе с простыми, легкими занавесками.
Классические многослойные шторы на угловых окнах смотрятся роскошно и элегантно, но уместны лишь в больших комнатах, например, в гостиной или спальне, на кухне лучше от такой идеи отказаться
В спальне важно учесть функционал, в этих помещениях необходимо иметь возможность создать полумрак даже в солнечный день. Здесь актуальны современные жалюзи в сочетании с легкими шторами на люверсах либо классические портьеры с тюлем, а также занавесы из ткани с функцией блэкаут
При выборе угловых штор на кухню необходимо учитывать специфику и размеры помещения. Оформляя кухонные оконные проемы, следует руководствоваться не только эстетикой, но и практичностью. Сюда рекомендуется выбирать ткани, которые легко моются и чистятся, не линяют и не деформируются при стирке. Шторы должны легко сниматься с карнизов. А учитывая, что кухни в основном не отличаются большой площадью, рекомендуется отказаться от громоздких и многослойных фасонов в пользу компактных ансамблей.
Кухня с ассиметричными по длине угловыми занавесками, короткая штора помогает освободить пространство подоконника
Композиция
Существует несколько базовых композиций для оформления угловых окон:
Единый ансамбль, который состоит из основного полотна и боковых занавесок. Здесь окна и простенки между ними чаще всего оформляются цельной полупрозрачной гардиной, а по краям подвешиваются плотные шторы, которые красиво подчеркивают необычную форму проема. В спальне без дополнительных плотных занавесов не обойтись, а в зале можно смело отказаться от этой детали, закрыв окна только полупрозрачным тюлем. Если два окна расположены стык в стык, в современных интерьерах и в маленьких помещениях гардины часто заменяют рулонными и римскими шторами, а также жалюзи разного вида.
Небольшое пространство спальни лучше оформить угловыми шторами в пастельных тонах, так интерьер не будет казаться перегруженным и тяжелым
Цельный ансамбль актуален для оформления сложных угловых окон, например, эркеров. В данном случае каждый проем занавешивают тюлем либо жалюзи, а каждое сопряжение декорируют отдельной шторой. Композицию объединяют сложным ламбрекеном либо драпировками. Этот же прием используют на два угловых окна, если требуется подправить пропорции проема и помещения в целом, например, подчеркнуть сопряжение, чтобы зрительно уменьшить ширину проема, либо спрятать несуразный простенок.
Промежуточные полотна разбивают проем на сегменты, помещение кажется выше
Отдельные угловые шторы уместны только для оформления больших оконных проемов либо, если между ними широкий простенок
Здесь важно правильно подобрать карнизы, занавесы должны быть идентичны. Сейчас популярно декорирование угловых окон ассиметричными шторами, такой дизайн актуален, если требуется объединить пространство, он помогает выправить пропорции помещения, если окна разного размера
Обычно по бокам проема подвешиваются длинные занавески, а дополнением являются ассиметричные ламбрекены, сваги, галстуки, как на фото ниже.
Угловые окна в небольших помещениях рекомендуется оформлять шторами лаконичного кроя
Угловое окно в интерьере — больше света в пространстве
Угловая кухня с окном
Помещение кухни является наиболее популярным местом для установки углового окна благодаря своей главной особенности – увеличению уровня естественного освещения. Учитывая эту особенность, а также габариты и расположение окна, можно сделать функциональную и стильную рабочую зону для хозяйки. Смотрите оригинальные идеи дизайна кухни с угловым окном на фото ниже.
Спальня с угловым окном
Угловое окно в спальне станет отличным решением для тех людей, которые любят наслаждаться видом из окна, как в дневное, так и ночное время. Ещё одним преимуществом установки такого окна в спальне является экономия средств на дополнительном освещении за счёт большой площади остекления. Однако, для регулирования уровня освещённости, всё же, советуем повесить шторы, цвет которых подобрать в соответствии с цветовой гаммой комнаты. Что касается дизайна самого окна и материалов для изготовления, то они выбираются в зависимости от стиля оформления спальни, а также вкусовых предпочтений хозяев. Оцените красивые интерьеры спален с угловым окном на фото.
Гостиная с угловым окном
Если ваша гостиная имеет прямоугольную форму, то удачным решением будет установить угловое окно. Такой подход позволит организовать уютное место для обеденной зоны, куда отлично впишется обеденный стол прямоугольной или квадратной формы.
Ещё одно решение – организация зоны отдыха с установкой под окном дивана схожей формы. Такое единение форм сделает общий дизайн гостиной более гармоничным. Смотрите интересные идеи дизайна гостиной с угловым окном на фото ниже.
Логично, что для частного дома с большой гостиной требуется не одно окно, а хотя бы два. Установкой двух угловых окон можно получить вдвое больше естественного освещения, при этом, визуально не нагружая стену. Красивый дизайн гостиной с двумя угловыми окнами смотрите в фотоподборке ниже.
Преимущества и недостатки
Начнем с положительных:
- В помещение проникает гораздо больше естественного дневного света, особенно в панорамных конструкциях без рам и несущего импоста.
- Необычный дизайн фасада и стильное оформление интерьера комнаты.
- В угловых проемах возможно применять стандартные окна, соединенные между собой в один блок. Такой подход уменьшает итоговую стоимость остекления, так как упрощаются монтажные работы и возможно использование недорого ПВХ профиля.
- Общий вес постройки снижается, что разгружает опорные элементы здания.
Отрицательные стороны:
- Качественная установка возможна только, если ее выполняют квалифицированные мастера. Фактически, эта особенность будет недостатком только для тех, кто привык делать все своими руками, но не имеет необходимого опыта для самостоятельного монтажа.
- Оконный блок не является несущим. Поэтому установка возможна только в постройках, рассчитанных на такое остекление, что должно решаться еще на этапе проектирования здания.
В многоквартирных домах перед установкой потребуется соответствующее разрешение на изменение фасадной части. Если захотелось преобразить частное жилье, а необходимых знаний нет, лучше предварительно проконсультироваться с опытным строителем.
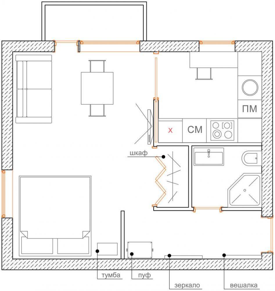
Вариант №2: квартирка для семейной пары
Цели
Сформировать вместительное жилое пространство; оборудовать уголок для просмотра телевизора и приёма друзей; установить большую двухместную постель; оснастить функциональную кухонную область дизайнерской мебелью с П-образной столешницей.
Решение
Дверь была перенесена на кухню, демонстрирована стена и проём в комнату из коридора. От входной зоны спальное место было отделено маленькой ширмой, изготовленной с применением тонкого матового стекла. Такая бесподобная планировка даёт возможность в крохотных апартаментах расположить все необходимые зоны, не загромождающие убранство стационарными конструкциями.
К тому же будуар при необходимости можно зонировать при помощи подиума с выдвижными ящиками для хранения, постельного белья и одежды, шторками или низким книжным стеллажом. Также вы можете оборудовать раздвижные перегородки на лоджии.
Достоинства
Множество шкафов для хранения; уютный салон для отдыха, трапезы и просмотра телепередач.
Недостатки
Открытое спальное место.


Угловые окна в интерьере частного дома
Угловые конструкции больше подойдут для таких стилей интерьера как минимализм, скандинавский, современный. Изящные арочные или прямые переплетения, подходящие к стилю прованс можно задать установкой горбыльков на пластиковом окне.
Оформлять окна можно с помощью различных штор и занавесок:
- часто можно встретить жалюзи небольшого размера или шторы с тонкими занавесками. Такое оформление обычно выбирают для создания небольшой тени. Желательно использовать светлые занавески, так как они не будут полностью преграждать путь световым лучам;
- красиво дополняет интерьер дома вариант с ламбрекеном небольшой длины. Его обычно дополняют маленькой шторой в области угла;
- для достижения эффекта легкости и воздушности используют светлый тюль. Он не останавливает свет, оставляя возможность естественного освещение комнаты;
- если нужно, чтобы была возможность уменьшения количества света, то можно использовать рулонные шторы. Такой вариант позволит регулировать уровень освещения в пространстве.

Такие архитектурные нововведения открывают широкий выбор деталей для оформления интерьера. Есть много вариантов преображения комнат, что позволяет выбрать индивидуальный стиль и сделать свой дом уникальным.

В современной архитектуре имеется множество интересных идей для остекления частных домов, которые прибавляют вашему жилищу стиля и уникальности. Угловое окно — это набирающее популярность решение, которое позволяет на малом участке стены получить бо́льшую площадь остекления. Благодаря этой особенности, такой вариант окна на треть увеличивает количество естественного освещения, по сравнению с классическими окнами. В сегодняшней статье мы разберемся, какие бывают виды угловых окон, а также расскажем где лучше всего их устанавливать. Смотрите подборку красивых угловых окон в интерьере на фото внутри статьи.
Дом с угловым остеклением
Дом с угловым остеклением обладает эффектной современной архитектурой и уникальным дизайном интерьеров.
Оптимальным решением для углового остекления загородного дома являются металлопластиковые окна. Для стыковки окон используется специальный угловой профиль, который бывает для 2х углов: 900 и 1350. Если угол отличается от указанных значений, то используют специальную усиленную эркерную трубу с поворотными механизмами, позволяющими соединять углы от 900 до 1800. В теории можно стыковать профили и под меньшим углом, но в таком случае невозможно будет сделать открывающуюся створку в непосредственной близости от угла. В архитектурном проекте в углу может быть предусмотрена опорная монолитная железобетонная или кирпичная колонна. В таком случае задача максимально упрощается, т.к. оконные профили стыкуются непосредственно к несущей конструкции.
Другая разновидность – безрамное угловое остекление. Отличается уникальным эстетическим эффектом единого стекла за счет отсутствия вертикального импоста. Применяется каленое стекло с полированной кромкой, которое обладает высокой механической прочностью и безопасностью при разрушении. Место стыковки стекол заполняется прозрачным герметиком. Минусом такого способа остекления является его высокая стоимость. Для примера: 4 стекла размерами 1×3м для остекления угла двухэтажного дома со вторым светом обойдётся примерно в 280 000руб с доставкой и монтажом (цена приведена на 20.04.2015)
Для того, чтобы учесть все нюансы и правильно подобрать эффективную угловую оконную систему для Вашего загородного дома, обратитесь с консультацией к нашим специалистам. Также закажите профессиональный теплотехнический расчет, который позволит свести теплопотери через большое угловое окно к минимуму.
Помещения, где применяют угловое остекление:
- Панорамные угловые окна идеально впишутся в интерьер гостиной или столовой, в т.ч. со вторым светом, создавая мистический эффект отсутствия границы между комнатой и окружающей природой.
- В ванных и спальных комнатах угловые окна правильнее расположить таким образом, чтобы с улицы не просматривались зоны кроватей, ванны и душевых кабинок.
- На кухне в зоне «фартука» – в данном случае глухая часть стены заменяется панорамными видами, при этом стекло легко поддается чистке, если загрязняется.
- В детской или в кабинете напротив стола – что особенно оценят люди творческих профессий. Если это солнечная сторона, то нужно позаботиться о комфортной работе за столом и защите от яркого света с помощью тонировки стекол, жалюзи или штор.
Виды окон для углового проема
Угловые окна в частных домах делятся на два типа:
- окна, оборудованные угловым импостом — специальная опорная конструкция;
- окна без углового импоста.
Окна с опорной установкой имеют меньшую стоимость, чем без опорной конструкции. При выборе цвета импоста нужно учитывать оттенки оконных планок. Окна, имеющие большой размер, необходимо оборудовать специальной опорой.
Варианты без опорной планки имеют большую стоимость из-за особенностей конструкции. Они не имеют планки на соединении, которое образует угол. Такие окна устанавливают для панорамного вида. Большой популярностью они пользуются у владельцев частных домов, так как они позволяют открыть вид на необычную местность без рамок. Также можно встретить такие варианты в многоэтажных домах Москвы.
Установки без опорной конструкции соединяются специальным клеем, который не портит эстетику окна.
Для открытия окна можно установить специальный раздвижной механизм. Специальные соединения не бросаются в глаза и практически незаметны. Такие окна обеспечивают хорошее естественное освещение в комнате. Для достижения более высокого уровня теплоизоляции нужно отдать предпочтение глухим вариантам без планки. Некоторые специалисты советуют делать смешанный вид окон: одна сторона должна быть глухой, а второй необходимо иметь возможность открытия.

Шторы для угловых окон – виды
В какую бы комнату вы не выбирали штору для углового окна, обязательно помните о том, что они не должны прятать и закрывать от посторонних глаз красивую конструкцию полностью
Их цель иная – выделить окно и привлечь к нему внимание. Лучше других для этого подходят шторы до пола, мягко струящиеся и образующие изящные складки
Общая штора на два окна


Как правило, основная штора, закрывающая два окна, не отодвигается и поэтому её изготавливают из легкого полупрозрачного материала. Цвет такой шторы может быть белым, бежевым, розовым, голубым или же иметь другой светлый оттенок. Материалом для изготовления основных штор служит тюль, органза или вуаль. Основа не мешает поступлению в помещение дневного света, позволяет видеть, что происходит на улице и выступает красивым фоном для декорирующих занавесок.
Для плотного закрывания окон служат боковые шторы из более толстого материала. Это может быть тяжелый шелк, жаккард, атлас или бархат. Цвет изделий должен быть темнее основы, но он должен сочетаться с ней и с общим интерьером комнаты. В принципе, декоративные шторы могут и контрастировать с общей цветовой гаммой, но в этом случае нужно очень тщательно подбирать оттенки, чтобы дизайн не выглядел вульгарно.

Двухстороннее расположение плотных штор создает рамочный эффект для окна, привлекает внимание к его форме. В качестве дополнения к ним можно использовать ламбрекены, красивые подвязки для штор, сваги и т.д
Красиво смотрится и угловое расположение штор, но оно возможно лишь в том случае, если в верхней их части нет декоративных элементов.
Эффектно и необычно смотрятся подсвеченные шторы. Сделать их самостоятельно довольно просто – нужно закрепить по краю карниза обычную светодиодную ленту.
Шторы для каждого окна

Если вы любите любоваться видом из окон, и даже легкая пелена тюля или органзы мешает наслаждаться красотами пейзажа, то для оформления оконных проемов нужно использовать раздельные портьеры. Их можно открывать и закрывать в любое время для осмотра территории или для проветривания помещения.
Занавески для каждого окна могут иметь одинаковые размеры и оформление или отличаться друг от друга – на усмотрение хозяев. Длина таких штор редко достигает пола – в основном, их размеры ненамного больше высоты окна. Изделия могут относиться к любому типу: римскому, французскому, классическому, рулонному. Многие домовладельцы отдают предпочтение современным жалюзи.

К преимуществам коротких штор относятся:
Универсальность – изделия легче вписываются в разные интерьеры, чем длинные аналоги.
Простота ухода и замены при порче или при желании изменить оформление окна.
Некоторые виды позволяют регулировать попадание света в комнату, при помощи изменения высоты (рулонные, римские, итальянские).
Не мешают размещению мебели возле подоконника.
Если дом расположен в тихом спокойном месте или угловое окно находится в квартире на последнем этаже высотного здания, то его не обязательно постоянно закрывать полностью. Шторы могут красиво обрамлять конструкцию по бокам и использоваться только в солнечные дни для зашиты от яркого света.

Занавески для окон не всегда должны быть плотными – наряду с шелком, атласом и другими толстыми тканями, могут использоваться такие материалы, как лен, хлопок, органза и современные синтетические аналоги. Красиво смотрятся и многослойные занавески из одинаковых по цвету или контрастных тканей. Наиболее эффектны изделия, сочетающиеся с основными цветами интерьера помещения.
Одним из последних веяний моды стали двухцветные шторы: более тонкий и светлый материал располагается ближе к центру окна, а слой темной и плотной ткани смещается ближе к краям конструкции. Иногда для такого оформления используют шторы с напуском (рукав епископа), но лишь в тех случаях, когда полностью закрывать окно приходится редко.
































Обзоры оконных профилей:
Особенности выбора штор на угловые окна
Шторы в комнате с угловыми окнами могут стать настоящим украшением и основным элементом интерьера, если учесть следующие моменты их выбора:
- карниз должен состоять из двух соединенных воедино половин (фото),
- шторы обязательно должны гармонировать с другими текстильными элементами декора,
- угловое окно самое подходящее и уместное место для пышных ламбрекенов, оборок и ниспадающих воздушных складок,
- на двух не смежных между собой угловых окнах уместно декорирование каждого проема по отдельности или совместно,
- шторы для угловых окон призваны выделять необычную планировку помещения,
- рамок для цветовых решений не существует, уместны и однотонные, и разноцветные гардины с узором или орнаментом,
- для минималистического стиля стоит выбирать плотную и неброскую ткань,
- перед покупкой штор на два окна сначала выбирают модель, после приобретают материал и карниз.

Римские шторы в сочетании с обычными
Шторы для кухонных угловых окон
Шторы на угловое окно на кухню, не должны быть слишком длинными и объемными. Повесить можно плотную штору и замаскировать имеющийся угол, обеспечив тем самым плавный переход на соседние стенки, или же наоборот выставить кухонное угловое окно как достоинство и подчеркнуть его прозрачным тюлем.

Угловое окно в кухне
Каким бы ни стал выбор хозяина квартиры, при выборе штор на кухню учесть нужно следующие советы дизайнеров:
- неприемлемо оформление кухонных окон, перед которыми стоит мебель, сплошной занавеской,
- кухня — это то место, где шторы загрязняются в два раза быстрее, чем в спальне или гостиной, поэтому карниз должен быть удобным и позволять свободно снимать и вешать на место постиранную занавесь,
- для столовых или кухонь, обладающих обеденной зоной, хорошо подойдут современные шторы с особенностями драпировки,
- когда вид за окном позволяет оставить оконные проемы открытыми, для украшения комнаты можно повесить на карнизы небольшие ламбрекены, или нитяные, пропускающие свет, занавески.

Красивое обрамление окна
Шторы для угловых окон гостиной
Угловые шторы в два окна гостиной, помогут создать пышную и торжественную обстановку в помещении, выгодно подчеркнуть стиль. Так как зал и гостиная, часто посещаемые комнаты, они требуют постоянного проветривания. Для окон, которые будут часто открываться лучше всего подойдут модные и стильные отдельные шторы. Современный стиль допускает полную ассиметрию отдельных угловых штор для зала по отношению друг к другу. Подойдет любая модель штор и цвет полотна, главное темную повесить на места угловых стыков, а более светлую — на само окно.

Гостиная с угловыми окнами
Для создания рамки подойдут плотные, текстурные шторы из натуральных тканей. Украсить их можно:
- свагами,
- галстуками,
- ламбрекенами.
Располагать портьеры в гостиной на угловых окнах можно следующими образом:
- в углу и по бокам, если отсутствуют украшения вверху,
- с подхватами и подвязками по бокам,
- оформление штор для зала допускает размещение по карнизу подсветки, которая создает романтическую и теплую обстановку.

Шторы для спальни с угловыми окнами
Для того чтобы подчеркнуть красоту и изящество больших угловых оконных проемов, для спальни выбирают длинные шторы из мягких струящихся материалов
Такие занавески станут украшением комнаты, и что немаловажно, они не будут загромождать пространство. Состоять цельный занавес для спальни должен из двух элементов: прозрачного и плотного полотна

Что касаемо цветовых решений, то:
- если обои комнаты темного цвета — шторы следует выбирать светлых и ненасыщенных тонов,
- создать уют и успокоить после тяжелого трудового дня помогут шторы из теплых песочных и коричневых оттенков,
- в зоне отдыха не уместными будут шторы ярких кричащих цветов,
- элегантный вид комнате придаст монохромное сочетание розовых и бардовых, синих и голубых оттенков,
- акцентное оформление угловых окон в помещении для отдыха делается однотонными гардинами.

Конструкция угловых окон
На текущий момент разработано два вида окон для угловых проемов – с импостом и без этого элемента. Причем возможны варианты как с глухими створками, так и с активными, способы открывания которых зависят от выбора фурнитуры. Сегодня производители могут изготовить и распашные, и раздвижные угловые окна. При этом второй вариант открывания считается более предпочтительным, так как в этом случае не требуется место для распахивания створок внутрь комнаты.
Модификации с импостом

Классический и хорошо всем известный пример вынесенных угловых конструкций с импостом – эркерные окна. Сам угол сопряжения соседних створок не имеет значения – он может быть разным, и важен сам принцип устройства. Угловые окна с импостом изготавливаются по этой же технологии, и ближайший отлично всем известный пример таких конструкций – остекление балконов.
Сложные окна
Рис. 8. сложное окно-трапеция
Сложный вид – это комбинирование разных вариаций. Скорее всего, здесь будут треуголки и ромбы, объединенные в одну композицию. Цельное стекло представляет собой ромб или трапецию. В зависимости от общего вида сложной конструкции, подбираются и портеры.
Для ромбовидного стеклопроема необходимо использовать короткие занавеси. Верхняя и нижняя часть закрепляются, как для наклонной мансарды. Но дополнительно в боковые углы ввинчиваются крюки, которые фактически будут раздвигать ткань в разные стороны, при том что верхняя и нижняя часть останутся сомкнутыми. Таким образом, в закрытом виде материал будет маскироваться под прямоугольник, а в открытом – полностью повторять форму ромба.
С трапецией работать сложнее. Для отдельных частей можно использовать разные виды занавесок. К примеру, горизонтальные роллеты из нескольких блоков.























































