Монтаж засовов и навесов

Навесы для ворот
Далее можно приступать к монтажу на створках и коробе навесов. Навесы монтируют по два с каждой стороны. Если применяется большой профиль по размеру для дополнительной защиты, появляется потребность в дополнительной паре навесов.
Приварка засовов для фиксации короба створок в изготовлении ворот играют немаловажную роль навесной замок. Для него приваривают проушины к рамкам створок. В продаже на сегодняшний день присутствует достаточное количество внутренних гаражных замков.
Такой замок менее подвержен взлому, так как он приварен к полотну с внутренней стороны гаражной двери.
Варианты установи калитки на створке ворот
Несмотря на простоту конструкции, существует несколько вариантов размещения калитки на створке ворот. Перед тем как в гаражных воротах сделать калитку следует выбрать, где ее разместить:
- В центре, при этом запирание выполняется в зоне стыковки створок. Такой вариант наиболее традиционный.
- Размещение калитки посередине створки. В этом случае меньше всего уменьшается жесткость конструкции, а запирать ее даже проще.
- Самый редкий вариант — размещение в районе петель створки.
Помимо размещения калитки отличаются по направлению открывания:
- Наружу.
- Внутрь.
Как сделать калитку в гаражных воротах при их полной сборке, хорошо показывает видео.
Металлические ворота для гаража: общая информация
Ворота в гараже необходимы по многим причинам. Наиболее очевидная – препятствие от проникновения внутрь посторонних лиц. Но вход в гараж выполняет также другие функции, он защищает внутреннее помещение от ветра, осадков, изолирует постройку от окружающей среды.
Выбор автовладельцев зачастую останавливается на металлических воротах в гараж. Это обусловлено их относительно низкой стоимостью и простотой изготовления. Металл значительно прочнее дерева, поэтому он обеспечивает надежную защиту от воров. Даже если гараж находится на участке без постоянной охраны, металл все равно станет серьезной преградой для злоумышленников.
Обычно чертеж для металлических ворот выбирают из уже готового, типового варианта. Нет надобности самому проводить расчёты и составлять схему. Подавляющему большинству гаражей подойдут стандартные чертежи. При выборе следует учитывать сложность металлической конструкции, соотносить её со своими навыками сварки и монтажа.
Большой ошибкой будет выбор слишком сложной модели, которую не получится изготовить самому. Помимо этого, необходимо учитывать практичность, ГОСТ-нормы, итоговый внешний вид (будет ли он устраивать или нет).
Ниже чертеж ворот гаража из металла (несколько вариантов):


Самые распространенные материалы для металлических ворот на гараж – алюминий или оцинкованная сталь. Надежную защиту обеспечит сталь с толщиной в 1,5-3 миллиметра. Минусом ворот из металла будет большой вес. В особенности это верно для моделей с толщиной более трёх миллиметров.
Оцинкованная сталь отличается дешевизной. Аналоги из алюминия выйдут почти в два раза дороже. Алюминий будет значительно легче стального листа, но в этом кроется его слабость. Его легче деформировать грубой силой, чем сталь.
Всего выделяют пять основных моделей ворот – секционные, откатные, подъемные, роллетные и распашные. Наиболее простыми для самостоятельной установки являются распашные.
Узнать подробнее о воротах в гараж Вы можете в статье — здесь.
Основными элементами такой модели является рама, полотно и крепежные петли. Сегодня производители предлагают готовые комплекты, которые экономят трудозатраты и снижают уровень необходимых навыков.
Железные ворота на гараж — фото:


Изготовление рамы
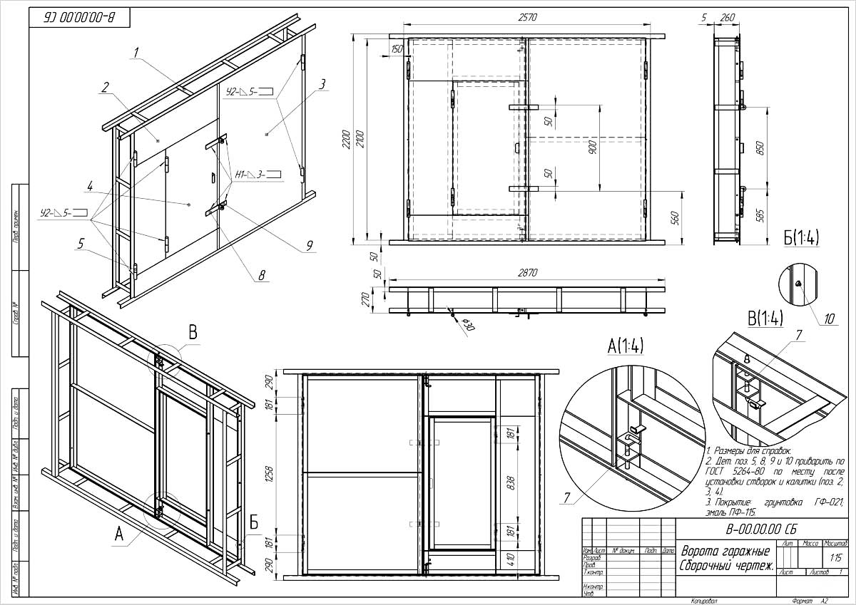
Чертеж запирающей конструкции
Первым делом необходимо сделать раму, являющейся основной частью для удержания всей конструкции. Изготавливать ее лучше еще с момента строительства стен. Начинать можно после возведения примерно половины объема гаража. После прерваться, выполнить рамку для гаражных ворот своими руками и продолжить строить дальше.
Придется потратиться на приобретение необходимых частей для ворот, но это намного дешевле, чем приобретать готовую конструкцию у мастеров. Состоит рамка из двух частей, располагаемых внутри и снаружи объекта. Действовать следующим образом:
1.С помощью болгарки режется уголок, по длине равный ширине ворот – 4 части. Далее отрезается 4 отрезка, равные высоте воротного отверстия. Делать можно как с небольшим запасом, так и вровень.
Процесс изготовления рамки
2.Уголки укладываются на ровную плоскость, проверяется все это с помощью уровня. Углы устанавливаются строго по 90о.
3.Свариваются уголки, чтобы вышла цельная рамка.
Сваривание рамки
4. Все остатки после сварочных работ удаляются с помощью шлифования. Наружная сторона должна быть идеально ровной.
https://youtube.com/watch?v=5WEpOnTbuao
Чертежи, схемы, эскизы
При этом во внимание берутся такие параметры:
- устойчивость к ветру, большому весу, другому механическому воздействию;
- жесткость проема;
- возможность деформации при указанных размерах створок и материала полотна;
- прочность на изгиб.
Схемы ворот составляются при планировании строительства гаража, чтобы своевременно и правильно подогнать размеры помещения под дверной проем.
Каркас ворот на проем 4 метра
Чтобы упростить и ускорить расчет можно воспользоваться специальными строительными калькуляторами.
Для этого нужно, чтобы ширина с обеих сторон, высота проема были больше параметров машины на 30 см.
Общепринятыми габаритами дверей гаража считается:
- Ширина — 2,5 м для легковых автомобилей, 5 м — для грузового транспорта.
- Высота — от 2 до 2,2 м для легковых автомобилей. Показателя в 2,5 м хватит для заезда микроавтобуса.
Независимо от способа открывания на чертеже обозначаются места фиксации ворот к направляющим профилям или коробу.
На чертеже отмечается количество, тип используемой фурнитуры.
Выделяются участки установки запоров, задвижек.
Изготовление створчатого каркаса

Воротные створки
Чтобы створчатый каркас легко заходил в гаражную раму и плотно прилегал к ее внешней стороне, его размеры по чертежам должны уступать габаритам проемной рамы. Из материалов для такой конструкции подойдет все тот же уголок, или прямоугольный прокат. Выбор зависит от значимости удобства изготовления створчатого каркаса из того или иного изделия для монтажников и увеличения в массе конструкции.
Этапы работ:
- Отрезается 8 кусков прямоугольного профиля, помня, что гаражные ворота будут иметь 2 половины. Длина 4-х вертикальных деталей должны быть меньше размера рамы ворот на 15 мм. Уменьшение длины позволит создать небольшой зазор, который позволит створчатому каркасу легко заходить в периметр внешней рамы. Длина 4-х горизонтальных фрагментов должна быть меньше половины ширины воротной рамы на 30 мм с той же целью.
- Можно также найти ровную площадку, чтобы на нее уложить детали в том положении, в котором они в будущем станут представлять собой створчатый каркас, а можно использовать уже готовую форму воротной рамы. Во втором случае контролировать прямые углы между деталями или устранять огрехи будет значительно легче.
- Производится сварка каркаса из деталей. При желании сделать конструкцию более монолитной можно приварить еще по одному прямоугольному профилю, который будет представлять собой дополнительную связку, перебирающую на себя часть конструктивной нагрузки. Середина каркаса – это наиболее эффективное место расположения дополнительной связи.
Как сделать распашные ворота своими руками
Конструкционная часть ворот данного типа несложная, потому их сделать вполне реально самостоятельно. Для изготовления понадобятся уголки, профили, листы. По размерам необходимо прикидывать самостоятельно, так как все зависит от размеров гаража. Можно попытаться сделать подъемные конструкции, но потребуется немалая сноровка при изготовлении всех необходимых частей.
Не стоит начинать изготовление без чертежей, чтобы при выполнении работ не возникало скосов, неопределенностей. Сделать документацию несложно, размеры достаточно занести на бумагу, где будут показаны все части, используемый материал. Первым делом, подбирается высота и ширина
Важно учесть, что расстояние от края машины до створок запирающего механизма было как минимум 30 см. Чем расстояние выше, тем будет удобней загонять транспорт внутрь
Огромные ворота для гаража своими руками выполнять неудобно – громоздкая часть занимает много места, ее сложней открыть.
Схема ворот
По высоте изделие должно быть примерно 2-2,5 м. Здесь лучше руководствоваться размерами авто. Если планируется загонять микроавтобус, необходимо предусмотреть высоту побольше.
Части ворот: рама, которая находится на въезде, в проеме гаража, створок и петель, которые их держат. Изготавливать раму оптимально из стальных уголков толщиной около 60 мм. Каркас можно выполнить со стали или прямоугольного профиля. После часть должна быть обшита железом толщиной 2-3 мм
Важно усилить петли снаружи, чтобы никаких прогибов, искривлений не было. Глядя на предложенный чертеж, можно подобрать размеры по своему гаражу, приобрести необходимые материалы
Пошаговая инструкция по изготовлению металлических распашных ворот
Монтаж металлических распашных ворот для гаража можно выполнить двумя способами.
Вариант №1:
Болгарка пошла в ход
Шаг 1. Раскрой материалов: нарезают болгаркой уголки и трубы нужных размеров, соответствующих чертежу или проекту.
Шаг 2. Сборка двойной рамы.
- Две вертикальные планки, длина которых соответствует высоте ворот, методом сварки соединяют между собой горизонтальными перемычками (стальными полосами).
- В стене проёма высверливают отверстия под фиксаторы, в качестве которых можно использовать штыри из арматуры. Минимальная глубина отверстий – 200 мм.
- Обеспыливают отверстия.
- Заполняют их цементно-песчаным раствором.
- С помощью кувалды забивают штыри.
- На выступающей части штырей отмеряют 50 мм и болгаркой срезают лишнее. Есть и другой вариант выполнения этой задачи: срезают штыри вровень с рамой, обваривают их после её установки.
- Насаживают раму.
- Кувалдой загибают выступающие части арматуры.
Монтажные работы выполняют, используя отвес и уровень. Аналогичным образом устанавливают вторую вертикальную стойку рамы.
Шаг 3. Разметка горизонтали под установку верхней балки и порога. При выполнении работ используют лазерный уровень.
Шаг 4. Согласно инструкции, приведённой в шаге №2, выполняют монтаж горизонтальных балок рамы.
Шаг 5. На столе собирают каркас обеих створок. Не забывают о необходимости усиливающих перекладин, которые могут быть расположены х-образно, т-образно или по принципу горизонтальных перемычек. Если предусмотрена калитка, сваривают её каркас из соответствующих элементов.
Шаг 6. Приваривают петли.
Шаг 7. Навешивают створки.
Шаг 8. Приваривают листы металла (зашивают створки).
- Листы для обшивки створок должны иметь выпуск сверху и снизу не менее, чем на 20 мм.
- Центр должен быть перекрыт нахлёстом одной из створок.
Шаг 9. Зачищают металл от последствий сварки.
Шаг 10. Покрывают антикоррозийной грунтовкой.
Шаг 11. Устанавливают замки и запоры.
Шаг 12. Окрашивают ворота.
При необходимости выполняют утепление створок и проёма.
Вариант №2:
Второй вариант изготовления распашных ворот подойдёт в случае отсутствия условий для строительного перфекционизма
Этот способ изготовления каркаса створок оптимален в тех ситуациях, когда нет возможности соорудить идеально ровную горизонтальную поверхность для сборки каркаса.
Шаг 1. Изготовление косынок. Из металлического уголка отрезают 4 одинаковых планки длиной 50 см. В нескольких точках прихватывают их к раме проёма. Косынка – вспомогательный элемент, который впоследствии будет срезан болгаркой. Поэтому сплошной сварки не требуется.
Шаг 2. Отрезают 4 планки для изготовления рамы створок.
Шаг 3. К косынкам прихватывают сваркой заготовленные на предыдущем этапе уголки так, чтобы получилась конструкция «рама в раме». Сплошная сварка нужна только в углах внутренней (для створок).
Шаг 4. Монтаж рёбер жесткости. Если в одной из створок предусмотрена калитка, сваривают её каркас.
Шаг 5. Установка навесов/петель. Используют изделия с соединением типа «папа-мама». «Папу» фиксируют к раме проёма, «маму» – к створкам ворот.
Шаг 6. Болгаркой разрезают раму створок посередине по вертикали.
Шаг 7. Срезают косынки.
Шаг 8. Обшивают створки листами металла или другим выбранным на этапе проектирования материалом.
Утепление
После изготовления конструкцию необходимо окрасить, для обеспечения защиты от коррозии и придания привлекательного внешнего вида. Вначале наносится грунтовка, а после ее высыхания – два слоя краски выбранного цветового оттенка.
К внутренней поверхности створок крепится обрешетка из деревянного бруса. В качестве изолирующего применяется рулонный или листовой материал. Расстояние между элементами обрешетки принимается, в зависимости от размеров листов утеплителя. Альтернативный вариант – использование пенопласта. Он плотно помещается между брусьями обрешетки, стыки задуваются монтажной пеной.

Утеплитель плотно помещается между брусьями, сверху закрывается пленкой. Облицовка выполняется из вагонки или другого подходящего материала.
Ворота должны быть изготовлены не позже окончания подготовки фундамента, поскольку их монтаж выполняется одновременно с возведением стен. Допускается выполнить сборку створок позже, но рама устанавливается при производстве кладки.
Если правильно учесть все необходимые параметры и выполнить сборку и монтаж без отклонений от технологии, особенных проблем с устройством гаражных ворот не возникнет. Главное – оставаться внимательным и не допускать ошибок.
Крепление петель и запора
После тщательной проверки дела своих рук приступают к установке навесов. Их потребуется четыре: два нижних варятся к раме, верхние – к каркасу полотен. Для усиления конструкции дополнительно привариваются металлические пластины.
Навесы устанавливаются таким образом, чтобы обеспечивалось полное открытие полотен не менее чем на девяносто градусов. Следует обеспечить строгое соответствие вертикальности размещения навесов. Перед окончательной сваркой необходимо установить петли на прихватках, собрать конструкцию и убедиться, что створки свободно перемещаются, отсутствует перекос и неточности в размерах. Только после окончательной проверки выполняется сварка.

В качестве запорных устройств используются замки фабричного производства. Они врезаются в полотна, с тщательной выверкой размеров.
Для одной створки выполняются стопоры вверху и внизу. Их изготовление ничем не отличается от выполнения засова, с той лишь разницей, что данные элементы располагаются вертикально. В раме просверливаются отверстия для прохода стопоров, в пол и стену выше и ниже рамы вставляются трубки, диаметр которых подбирается таким образом, чтобы через них свободно проходили указанные элементы.

Выполнение каркаса и створок
Эта часть делается немного меньшей, чем рама. Она должна без усилия входить в проем створок и хорошо прилегать к внешней стороне рамы. Чтобы ее изготовить, понадобится стальной уголок. Подойдет такой же, как и для рамы. Если материал отсутствует, подойдет прямоугольный профиль. Различие будет в комфорте произведения сварочных работ. Делается все следующим образом:
- Вырезается 4 части, которые меньше на 10 мм, чем рама для ворот. Зазор нужен, чтобы не было сложностей при вхождении данной части в рамку. Створки две, потому необходимо еще столько же частей, которые вырезаются.
Изготовление каркаса
2. Части укладываются на горизонтальную поверхность и между ними устанавливается угол в 90о. как вариант, можно уложить в уже готовой рамке, чтобы видеть небольшие скосы еще не приваренных частей.
3.Углы привариваются
Чертеж запирающей конструкции
После необходимо изготовить створки. Делаются они с помощью листов стали. Оптимально использовать материал 2 мм в толщину. Производятся следующие операции:
- Вырезается 2 полотна немного (на 3 см) больше, чем высота отверстия для ворот. Полотно 1 делается меньшим на 2 см, чем ширина каркаса, полотно 2 – больше на 2 см.
- Полотна должны выступать за грани каркаса на пару сантиметров, со всех сторон. Одна створка будет ложиться поверху второй, потому делать, какая будет сверху, необходимо по удобству.
3. К частям привариваются петельки. Одна часть должна быть закреплена на створке, которая будет открываться, вторая – к раме на воротах. Для усиления, под ними можно уложить и приварить еще небольшой кусок арматуры.
4. Все части укладываются на ровную поверхность, проверяется, есть ли искривления, неровности.
Если все части лежат ровно, можно устанавливать гаражные ворота, сделанные по схеме собственноручно, в гараж, продолжать кладку кирпича.
Подбираем инструменты и материалы для работ
Перед началом работ необходимо побеспокоиться о подготовке необходимого инструмента и материалов. Для изготовления и установки ворот требуется запастись следующими инструментами:
- угольником для сверки прямоугольности конструктивов;
- пятиметровой рулеткой;
- аппаратом электросварки с расходными материалами, комплектом спецодежды, рукавицами и маской;
- болгаркой с обрезными и заточными дисками;
- карандашом, маркером или мелом для разметочных работ;
- строительным уровнем.
Из материалов потребуется:
- шестьдесят пятый уголок для изготовления рамы;
- каркас выполняют из уголка пятьдесят на пятьдесят миллиметров или труб цилиндрического, прямоугольного или шестиугольного профиля.
Иногда используются арматурные стержни. О листовом металле для полотен говорилось выше. Количество материалов определяют, исходя из чертежа.

Основные этапы изготовления
Чтобы установленная конструкция прослужила долгие годы, свободно открывалась и закрывалась, а также не разрушалась из-за негативного внешнего воздействия, необходимо соблюдать последовательность монтажа. Процесс изготовления распашных ворот на каркасе предполагает выполнение нескольких ключевых этапов.
Изготовление рамы
Прежде чем приступить к изготовлению рамы, важно найти подходящее рабочее место. Поверхность рабочего пространства должна быть гладкой, а масштаб больше габаритов конструкции на метр со всех сторон
Допускается выполнять работу, закрепив на кирпичных столбиках плотный материал. Создание рамы начинают после возведения фронтальной стены.
Металлическая рама монтируется из внешней и внутренней составляющих. Сначала из металлического уголка вырезается 8 деталей, одна половина которых равняется высоте, а вторая — ширине въездного проема. Получившиеся заготовки раскладывают на ровной поверхности для измерения углов.
Если каждая деталь обладает прямым углом, необходимо соединить элементы при помощи сварочного шва, наложив друг на друга. Если в ходе приваривания произошло нарушение угла, исправить погрешность возможно рычагом, изготовленным из обрезков. В проблемных местах дополнительно привариваются уголки. После устранения дефектов проводится шлифовка, чтобы обеспечить плотное прилегание створок.
Полотно и силовые петли
Основным элементом распашных ворот является полотно, которое состоит из двух створок. Полотно из металлических листов крепится на профильный каркас. Процесс подготовки полотна требует выполнения следующих действий:
- Лист металла размечается согласно определенным габаритам створок. Левая створка должна быть шире на 10-20 мм, чтобы накладываться внахлест.
- Створки вырезаются с помощью болгарки и привариваются к раме с нижней стороны для предварительной фиксации.
- Когда створки выровнены, необходимо закрепить их сваркой по всему периметру. Чтобы во время рабочего процесса полотна не сдвигались, рекомендуется начать сварку с углов.
- После приваривания элементов требуется установка петель.
Петли и фиксаторы ворот
Фиксирующие петли для ворот необходимо приобрести и подготовить заранее. Петли состоят из двух частей. Одна деталь крепится на цилиндре и обеспечивает возможность вращения конструкции. Вторая часть выполняет функцию крепежа. Для установки ворот потребуется 4 петли. При использовании конструкции с повышенной массой и крупными габаритами можно увеличить количество крепежей до 6.
Во время монтажа нижняя часть петель приваривается к внешней стороне рамы, а верхний элемент фиксируется с обратной стороны. Для повышения прочности крепления разрешается приварить с каждой стороны петли по металлической полоске.
Створки
Изготовление створок
В соответствии с типовой схемой распашных ворот внутри рамной конструкции размещаются створки, каждая из которых выполняется в виде отдельного каркаса, закрываемого впоследствии сплошным металлическим листом. Для их изготовления, как правило, используется тот же профиль, что и при подготовке общей рамы. Монтаж створок проводится в указанном ниже порядке:
- Сначала элементы каркаса слегка «прихватываются» между собой на сварку.
- После этого осуществляется прикидочная установка створок внутри рамы, уложенной на жестком и ровном основании.
- При необходимости размеры створок корректируются (с учетом технологических зазоров по отношению к основной раме).
- По завершении подгонки размеров заготовки окончательно свариваются в каркас, который затем закрывается листами железа толщиной 2–3 мм (с использованием той же сварки).
Приваривание петель
На завершающей стадии монтажных работ к воротам в заранее намеченных местах привариваются навесные петли. При этом нижняя неподвижная (опорная) часть петли монтируется на самой раме, а верхняя подвижная приваривается к каркасу створок.
В качестве внутренних запоров ворот могут использоваться обычные засовы, монтируемые в верхней и нижней частях створок.
Изготовление рамы
Проем гаражных ворот обшивается уголком
Перед началом монтажных работ необходимо будет подготовить следующий рабочий инструмент:
- сварочный аппарат;
- болгарка;
- угольник и рулетка;
- строительный уровень.
Устройство распашных гаражных ворот
Монтажные работы начинаются с подготовки рамной конструкции, которую предполагается использовать в качестве каркасного основания будущих гаражных ворот. Для удобства его изготовления сначала следует подготовить эскиз будущей рамы, которая состоит из внутренней и наружной частей. В этом чертеже должны быть указаны высота и ширина самой рамы (по размеру въездного проема), а также габариты внутренней калитки, используемой для входа в гараж.
Подготовленный к установке ворот проем
Подготовка рамной конструкции начинается с нарезки заготовок швеллера (или уголка) в соответствии с указанными в эскизе размерами. После этого полученные заготовки раскладываются на жесткой и ровной поверхности в порядке, указанном на подготовленном ранее эскизе. В процессе укладки необходимо внимательно следить за соблюдением всех размеров, которые должны точно соответствовать указанным в схеме. При этом правильность формирования угловых стыков проверяется с помощью угольника.
Чертеж
После монтажа рамы, проведенной с соблюдением всех указанных ранее требований, вы можете приступать к ее сварке, по завершении которой образовавшиеся швы следует тщательно зашлифовать.
Как установить обшивку и приварить петли
После окончания работ по изготовлению каркаса, можно устанавливать на него обшивку. Но, для устройства калитки, перед этим следует:
- В листе металла, если он сплошной, вырезать проем.
- При наборной обшивке, состоящей из нескольких листов, придется комбинировать установку.
Далее, по технологии устройства калитки:
Монтируется обшивка на каркас секции с помощью прихваток сваркой по периметру, как показано на фото. Таким же образом облицовывается и каркас двери.

- После окончания монтажа обшивки крепятся петли на калитку и привариваются к створке ворот. В этом случае дверную конструкцию можно установить в готовый проем, и все на месте тщательно отмерять и приварить петли.
- Половина ворот навешивается на место.
- Устанавливается запорное устройство.
Дополнительное устройство калитки в дверной створке гаража – его визитная карточка, которая придает сооружению не только ряд практических функций, но и создает ему уникальный, неповторимый вид.
Изготавливаем каркас для створок
Размер каркаса самодельных ворот должен быть немного меньше рамы, чтобы он свободно проходил внутрь проема при закрывании. Порядок изготовления:
- отрезается четыре куска выбранного профиля, его длина выбирается на сто-сто пятьдесят миллиметров короче, чем высота рамы; затем – еще столько же, на триста-триста пятьдесят миллиметров меньше ширины;
- сборка и сварка выполняются аналогично подобным работам с рамой.
Конструкция выйдет более жесткой, если добавить дополнительные горизонтальные распорки по центру каркаса. Сварные швы необходимо тщательно обработать болгаркой, чтобы обеспечить идеально ровную плоскость поверхности для плотного прилегания обшивки.






































